Appartamento in affitto a Firenze (FI) zona Fortezza - Stazione

Rif: az orti
Condividi Linkedin Whatsapp Stampa
€ 1.700
Appartamento
75 Mq
3 Vani
Classe energetica E
1 camera
1 bagno
Ascensore
appartamento ristrutturato a pochi passi dal centro storico
In un elegante palazzo con ascensore, proponiamo in vendita/affitto un appartamento
situato al quarto piano, recentemente ristrutturato con cura e attenzione ai dettagli. Gli
ambienti risultano spaziosi, accoglienti e particolarmente luminosi.
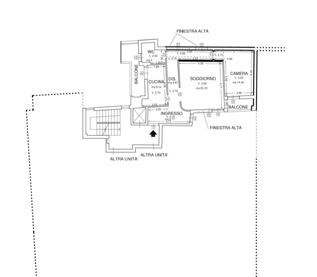
L'immobile, di 70 mq si compone di:
ampio living di circa 20 mq, ideale come zona giorno o area relax, caratterizzato da
grande luminosità, dotato di due divani letto
cucina abitabile e completamente attrezzata, spaziosa e funzionale,
camera matrimoniale confortevole, silenziosa e ben organizzata,
bagno moderno con doccia e finiture di qualità,
due balconi vivibili di cui uno ad uso lavanderia, donano ulteriore ariosità e luce
naturale agli ambienti.
l'appartamento dispone di cir/cin disponibile per la sublocazione.

Dettaglio immobile

Contratto Affitto
Rif az orti
Prezzo € 1.700
Provincia Firenze
Comune Firenze
Zona Fortezza - Stazione
Indirizzo Via Degli Orti Oricellari 26
Superficie 75 mq
Vani 3
Camere 1
Bagni 1
Classe energetica E (DL 192/2005)
EPI 175 kwh/m2 anno
Piano 4 / 6
Riscaldamento autonomo
Condizioni abitabile
Spese condominiali € 150
Anno di costruzione 1950
Arredato si
Ascensore si
Cucina angolo cottura
Terrazza si

Consistenze

Descrizione Superficie Sup. comm.
Principali
Immobile - 4° piano 75 Mq 75 Mqc
Totale 75 Mqc

Planimetrie

Richiedi maggiori informazioni

Autorizzazione al trattamento dei dati personali+
Dichiaro di aver letto l'informativa sulla privacy ed accetto le condizioni d'utilizzo del servizio.
Riempi il campo con il codice riportato nell'immagine*
Codice Captcha
Chiamaci Contattaci